Команда «Світ Комфорту» виконує проектування вентиляції та проектування кондиціювання будь-якої складності — від приватних приміщень до комерційних об’єктів. Ми створюємо рішення “під ключ”, забезпечуючи комфорт, енергоефективність та повну відповідність нормативам.
Склад проектної документації
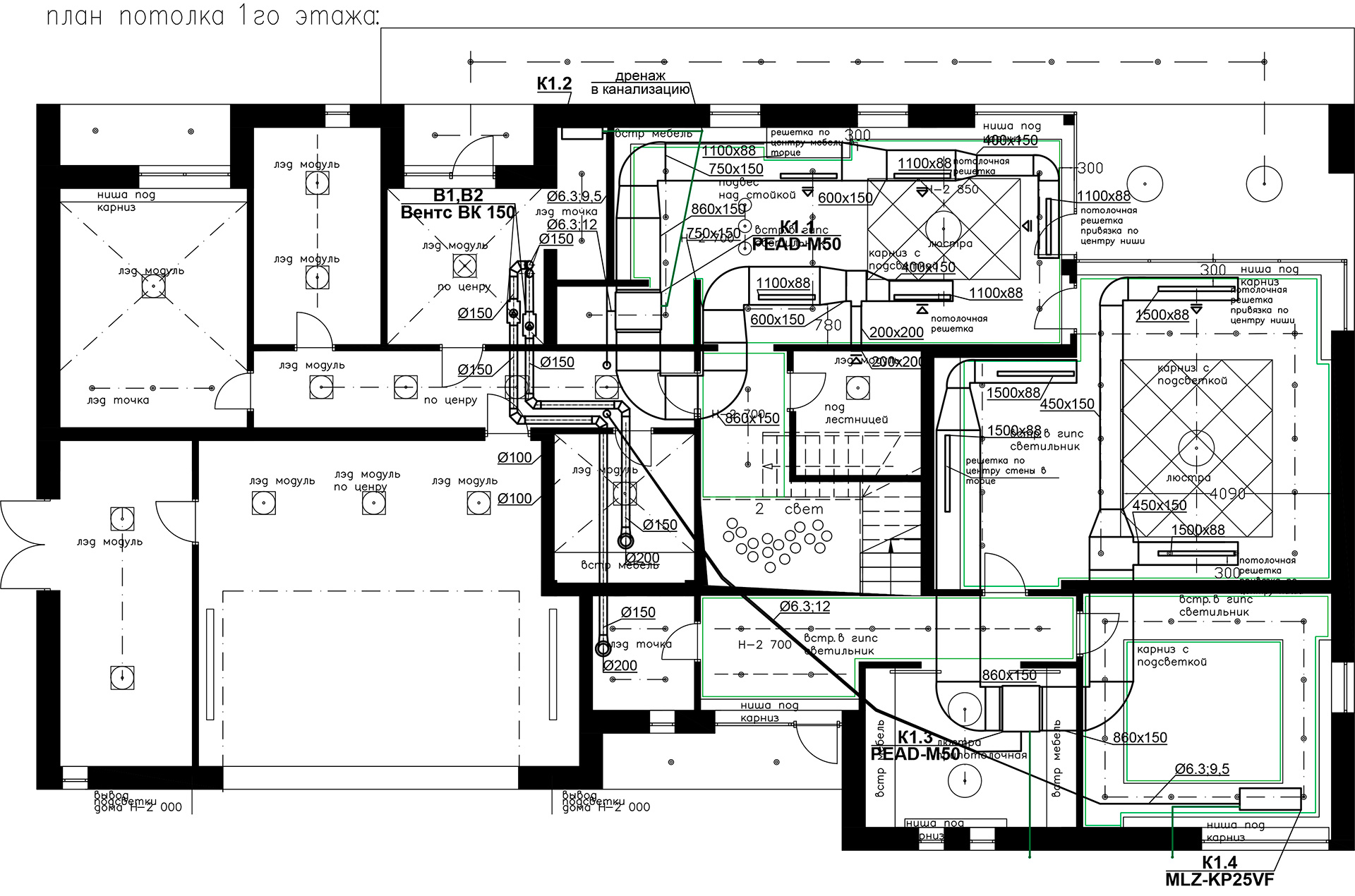
Документація включає всі необхідні деталі для точного монтажу та експлуатації системи:
1. Розміщення обладнання
Ми вказуємо точні місця установки кондиціонерів, вентиляційних установок та повітропроводів, щоб забезпечити оптимальний мікроклімат.
2. Вимоги до монтажу та комунікацій
Схеми прокладання трас, кріплень та вузлів підключення для правильної роботи системи.
3. Детальна специфікація
Повний перелік обладнання, витратних матеріалів та комплектуючих для якісного монтажу.
4. Технічне завдання для суміжників
Забезпечуємо взаємодію з іншими спеціалістами на об’єкті для злагодженої роботи та виконання проекту по кондиціюванню.
Робота та співпраця
Ми цінуємо командну роботу та взаємодіємо з:
- Будівельниками та підрядниками — для точної інтеграції системи у конструктив будівлі.
- Архітекторами та дизайнерами — щоб проект кондиціювання гармонійно вписувався в інтер’єр.
- Монтажними організаціями — для коректної реалізації проекту вентиляції та кондиціювання на об’єкті.
Спільна робота дозволяє досягти ідеального результату — комфортного, тихого та енергоефективного мікроклімату.
Етапи роботи над проектом по кондиціюванню
1. Огляд об’єкта та консультація
Наш проектант оцінює розміри приміщень, особливості архітектури та теплові навантаження. Консультація допомагає врахувати всі побажання замовника.
2. Написання технічного завдання
Документ відображає вимоги до системи, клімат регіону та особливості інтер’єру, стаючи основою подальшої роботи.
3. Оцінка будівлі та складності комунікацій
Аналіз включає тип конструкції будівлі, матеріали стін, розміри приміщень та складність монтажу обладнання.
4. Розробка вимог до монтажу обладнання та прокладання комунікацій
Прописуються стандарти якості, безпека та особливості об’єкта для точного виконання проекту вентиляції.
5. Детальна специфікація
Список обладнання та матеріалів з технічними параметрами, виробниками та моделями. Забезпечує точність підбору та допомагає планувати бюджет.
Ви можете замовити проект вентиляції або кондиціювання прямо зараз, щоб отримати індивідуальне рішення для вашого дому або офісу у Харкові та Полтаві.
Замовте проект кондиціювання
Плануєте встановити систему кондиціонування або вентиляції?
Зв’яжіться з нами, і команда «Світ Комфорту» розробить проект, повністю відповідний вашим вимогам та стилю об'єкта.
Контакт: (095) 778-85-00
Ми допоможемо створити комфорт, який відчувається з першого вдиху!
